About
Work
About
Work
Tomas Gamst Kristiansen
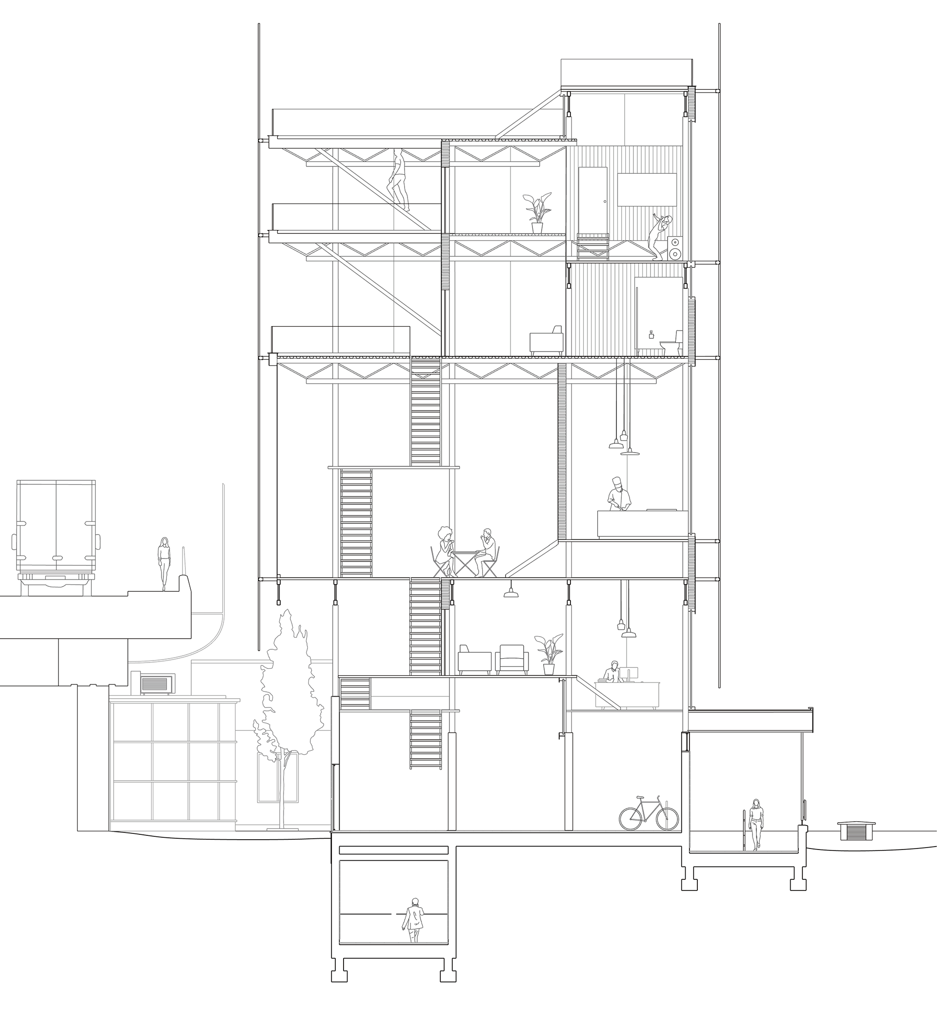
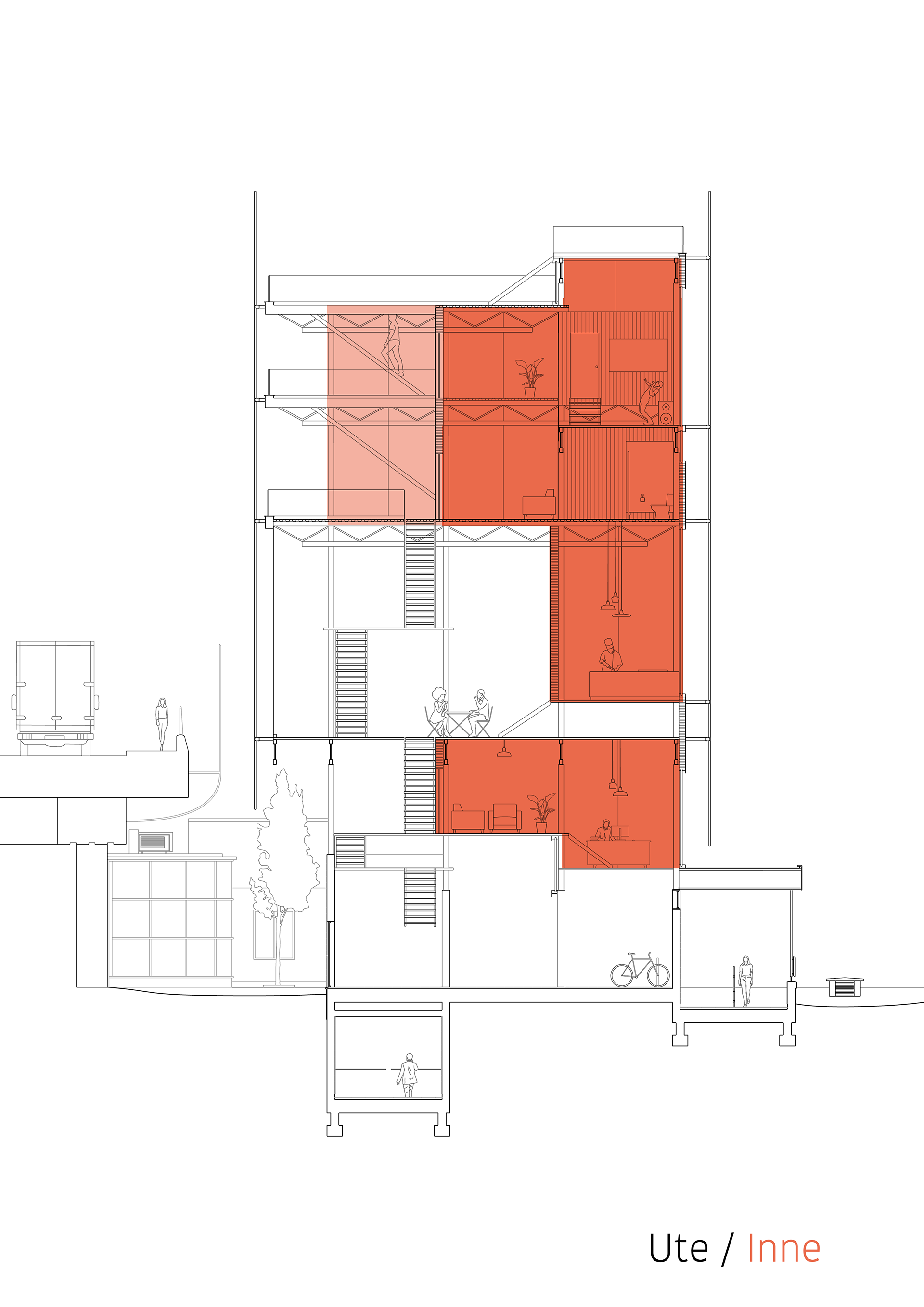
Youth center Vaterland
Focus: Metals & Section
↑
Back to Top