About
Work
About
Work
Tomas Gamst Kristiansen
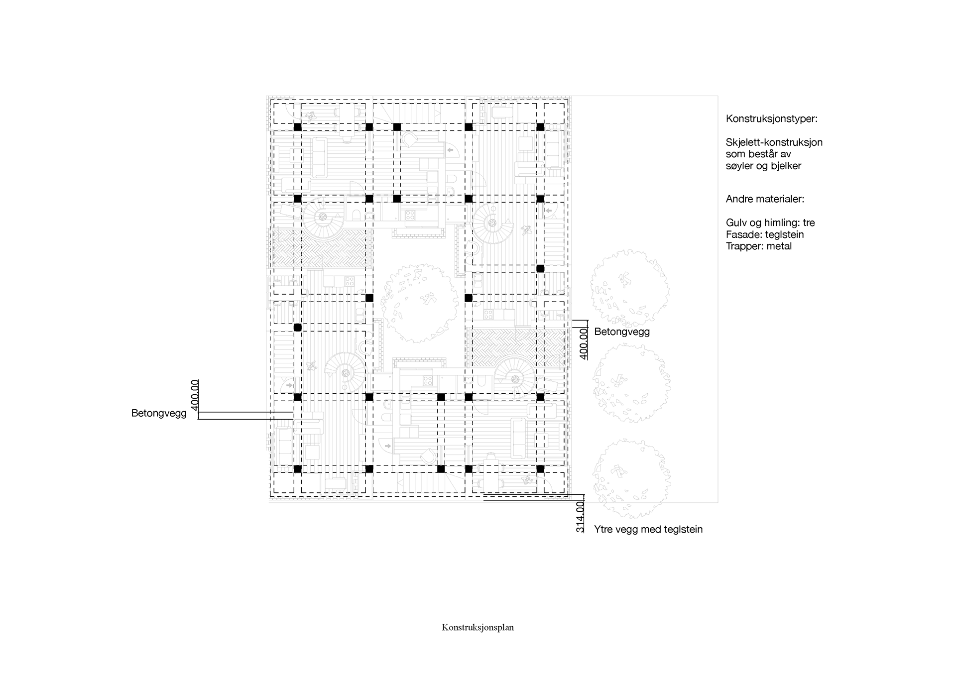
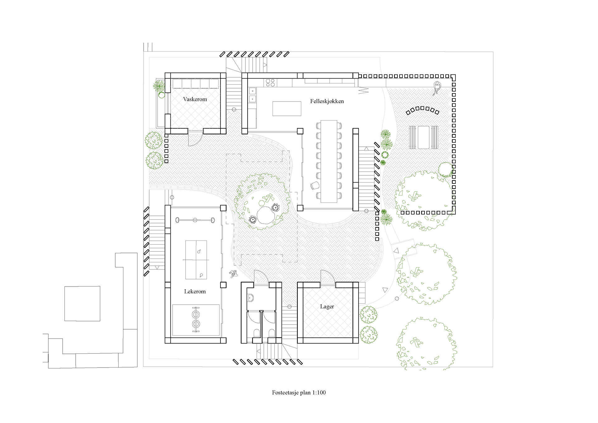
Family-home Adamstuen
Working Partner: Meiyan Fang
↑
Back to Top