About
Work
About
Work
Tomas Gamst Kristiansen
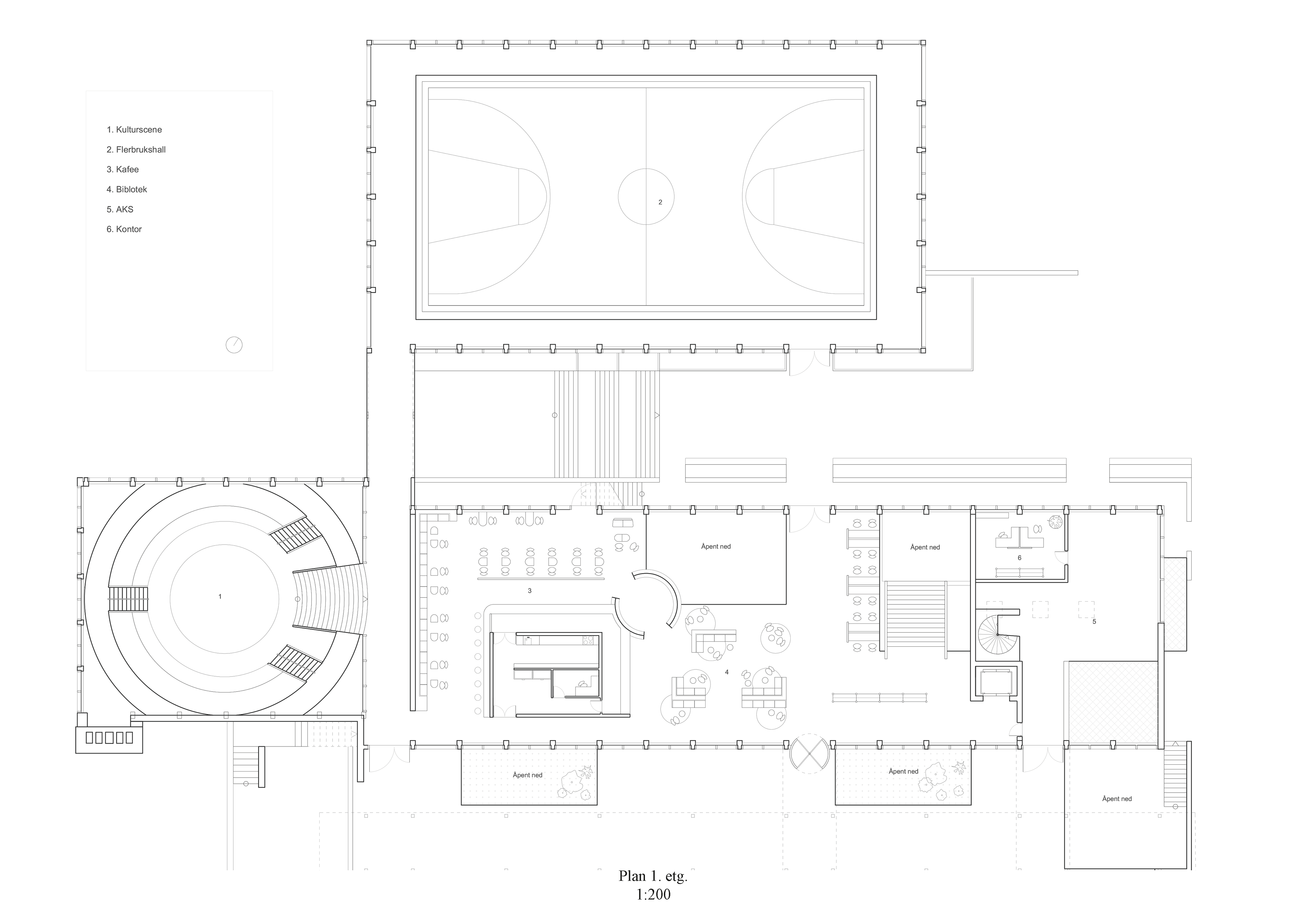
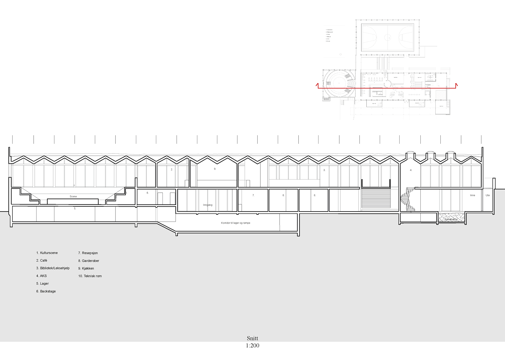
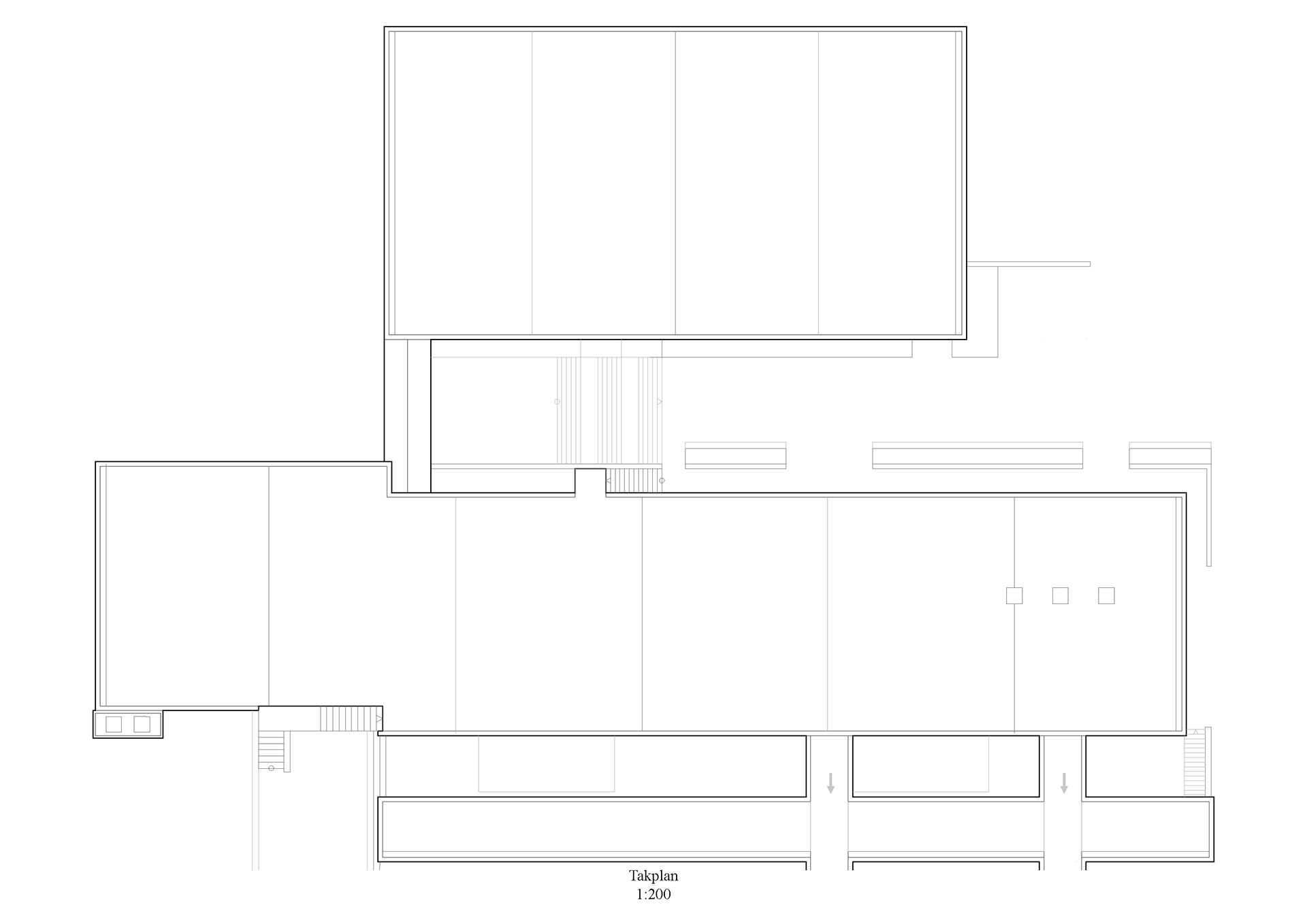
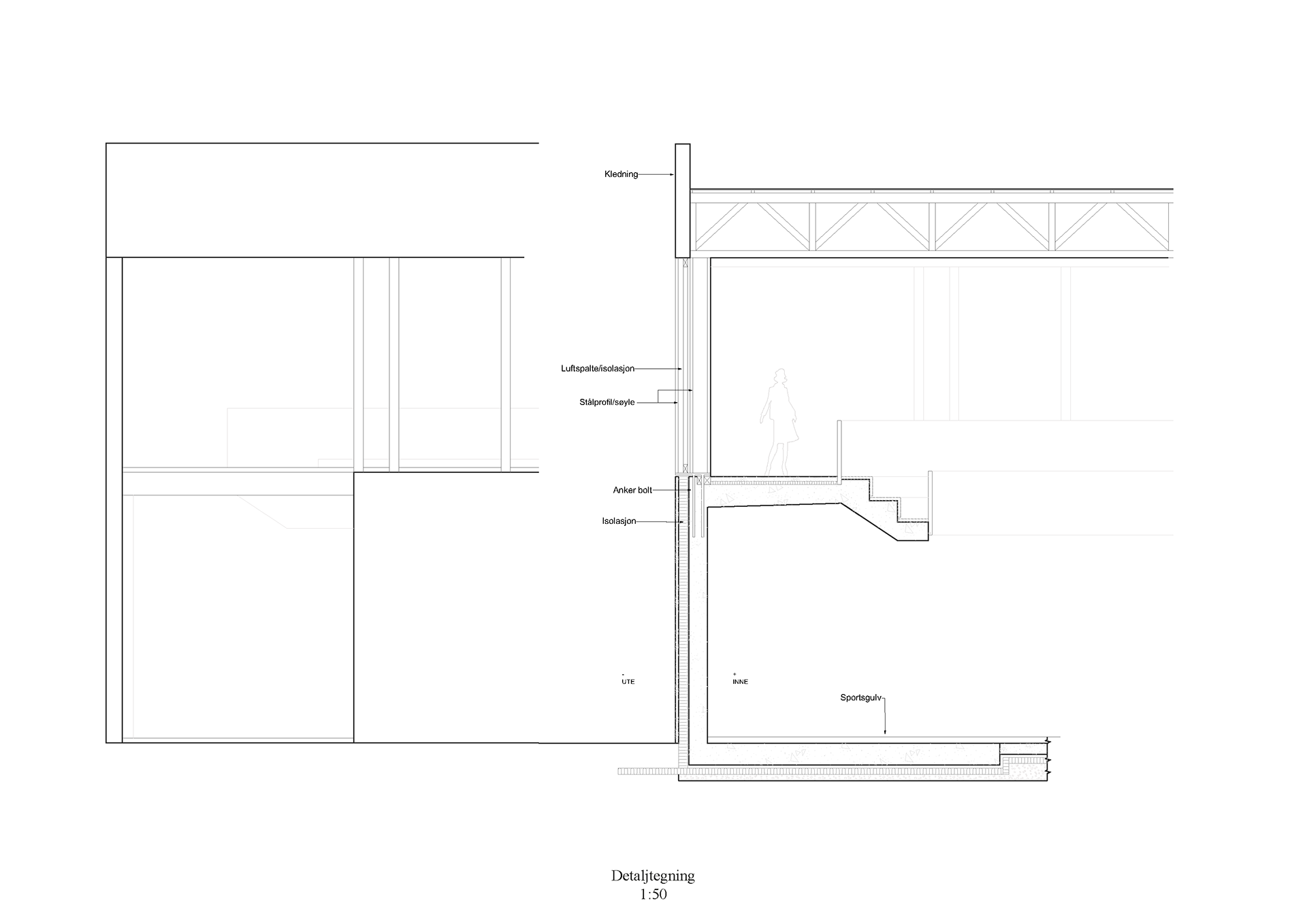
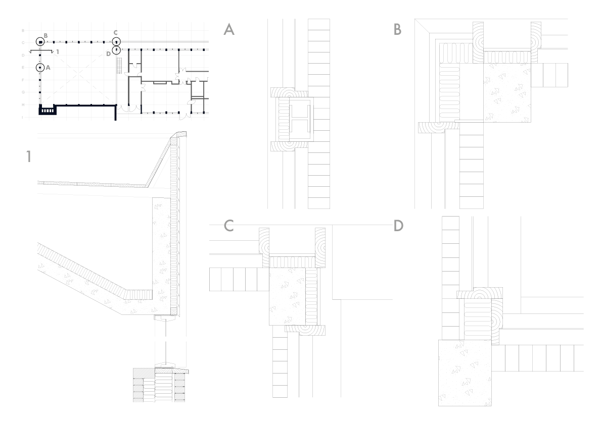
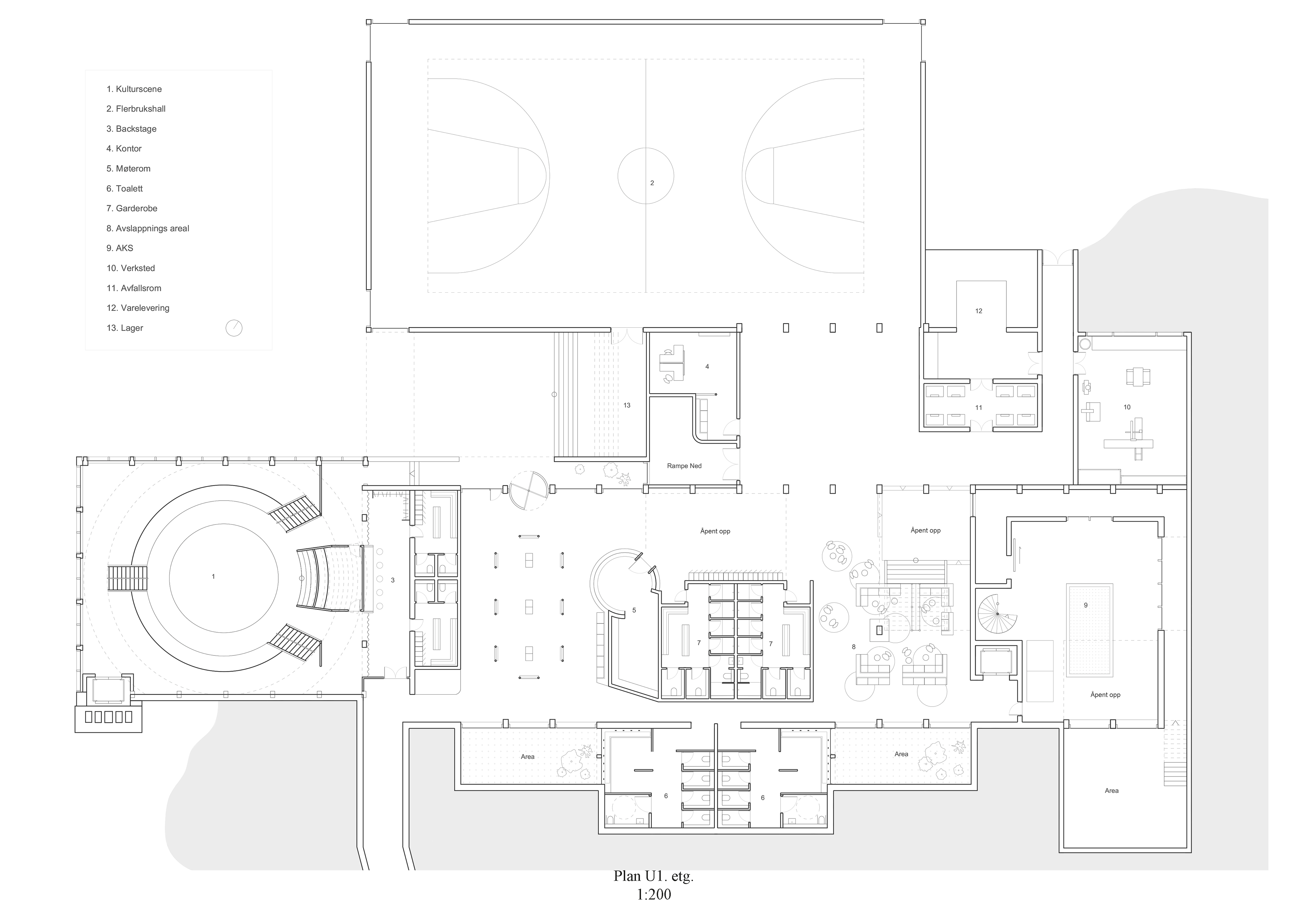
Community building Adamstuen
Working Partner:
Victoria Rosenborg MinosĀ
Render by Victoria Rosenborg Minos
↑
Back to Top